特點說明:
本閥適用于發電廠干灰系統、倉泵出料輸送.也可適用于礦山、 造紙、化工等個類有磨損的干粉塵、水例如(灰渣水)等介質 在管道上作啟閉之用。公稱壓力1.0MPa. 適應溫度≤200。c. 氣 源壓力0.6-0.8MPa。
本閥門關閉后任何方向全部密封。閥體中間體采用WCB鑄鋼件及無縫鋼管焊接。密封面采用硬密封件。
本閥料口全流通無阻擋物有吹堵裝置,耐磨性能,密封性能好,啟動負荷小卡灰及結灰現象少。
本閥采用高檔曾韌結構陶瓷密封,機械強度高耐磨性能好使用壽命長。結構緊湊可任意角度安裝。
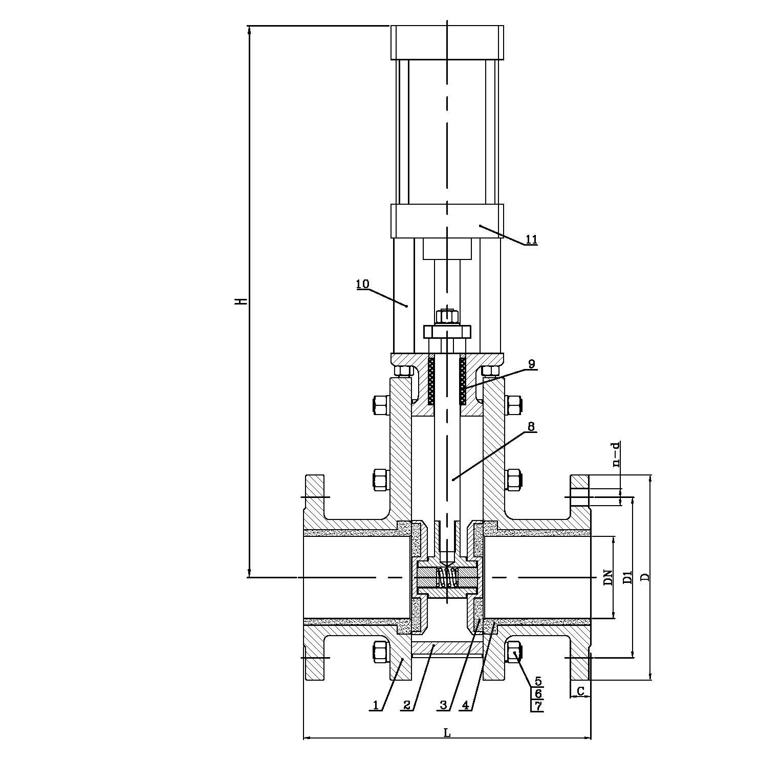
| 主要外形和連接尺寸 | |||||||
| DN | PN(kg) | L | D | D1 | C | H | n-d |
| 50 | 10 | 200 | 160 | 125 | 16 | 520 | 4-?18 |
| 65 | 220 | 180 | 145 | 18 | 595 | 4-?18 | |
| 80 | 240 | 195 | 160 | 20 | 635 | 8-?18 | |
| 100 | 280 | 215 | 180 | 20 | 630 | 8-?18 | |
| 125 | 300 | 245 | 210 | 22 | 715 | 8-?18 | |
| 150 | 320 | 280 | 240 | 24 | 840 | 8-?23 | |
| 175 | 320 | 310 | 270 | 26 | 885 | 8-?23 | |
| 200 | 350 | 335 | 295 | 26 | 1155 | 8-?23 | |
| 250 | 400 | 405 | 350 | 30 | 1400 | 8-?23 | |
| 300 | 450 | 460 | 400 | 30 | 1800 | 12-?23 | |
| 應用規范 | ||
| 設計與制造 | GB/T 12224 | |
| 連接端尺寸 | 結構長度 | 廠商標準 |
| 法蘭尺寸 | JB/T 79.1 | |
| 檢驗與試驗 | GB/T 9092 | |
| 材料 | 碳鋼 | GB/T 12229 |
| 不銹鋼 | GB/T 12230 | |
| 標志 | GB/T 12220 | |
| 供貨 | GB/T 12252 | |